› Noto › BELVEDERE GUASTELLA A
BELVEDERE GUASTELLA A
Noto - Apartment
Availability and prices
Accommodation
Description
The residence is located in the picturesque province of Syracuse, in the heart of the Val di Noto. The town of Noto, fascinating for its complex history, is divided into three distinct areas, each representing a different phase of its evolution. Noto Antica, with its archaeological remains, transports us back in time, offering a glimpse of ancient buildings of historical importance. In the centre of Noto the architectural heritage, characterised by sumptuous Baroque buildings, is a perfect fusion of culture, art and social life, where past and present are harmoniously intertwined. Going up toward Noto Alta, we come to the beautiful Belvedere Guastella, just five minutes from the historic centre and set in an elevated vantage point in respect to the rest of the town. Although renowned for its historic churches and squares, Noto Alta offers an authentic tranquillity compared to the intensity of Noto. Within a charming historic building, the recently renovated apartment exudes a refined and eclectic atmosphere, a fascinating place where modern comfort blends with the historic and artistic atmosphere of the town. The attention to detail, evident in the artefacts and designer furniture, creates a refined and elegant environment. The cosy kitchen is the ideal place for informal meals, while the living room sets the stage for aperitifs and sumptuous dinners, surrounded by fine details in both the furnishings and ceilings, skillfully decorated by hand, and in a fascinating play of mirrors. The apartment has four bedrooms, two on the ground floor and two on the upper floor. One of the upper floor rooms opens onto a large terrace, enhanced by artistic walls and a table that are true works of art, with an enchanting view over the rooftops of Noto. The surrounding area offers exciting artistic and cultural itineraries, while the renowned towns of Avola, Modica, Ragusa and Scicli present a unique combination of Baroque architecture and food and wine delights. The Vendicari Nature Reserve, with its sandy rocky shores washed by a crystal-clear sea, invites you to relaxing swims and regenerating walks. NB: This apartment adjoins Belvedere Guastella B, sharing the same landing. For larger groups, it is possible to spread out between the two apartments by booking both.
BELVEDERE GUASTELLA A VILLA PHOENIX HAS BEEN SUBJECTED TO A CHECK-UP BY A TECHNICAL RESPONSIBLE BEFORE THE BEGINNING OF THE SEASON, TO ENSURE CONSISTENCY OF THE DESCRIPTION, ACCESSORIES LISTED ON THIS PAGE AND THEIR PRESENT STATE OF OPERATION/MAINTENANCE, TO GUARANTEE QUALITY, CLEANLINESS AND COMFORTS TO ALL CLIENTS WHO WILL STAY HERE.
Interior:
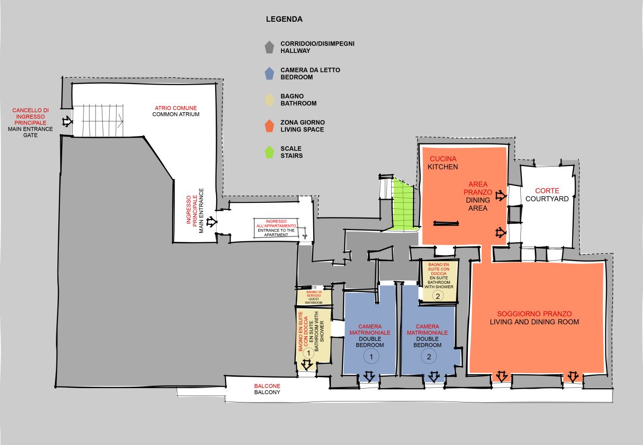
This fully air-conditioned apartment has two floors. The antique gate leads to an entrance shared with two other apartments. The main door opens onto a corridor leading to a guest bathroom and two double bedrooms, each with en-suite bathroom with shower and a small balcony overlooking the courtyard. In one of the bathrooms, you can step out onto the balcony directly from the shower. Continuing on, you come to the brightly-coloured kitchen with dining table that faces the spacious living room which includes both seating and dining areas and with access to the balcony overlooking the courtyard. A staircase leads to the upper floor with two double bedrooms with en-suite bathroom with shower. One of the bedrooms has access to a small terrace with two armchairs and a splendid view over the rooftops of Noto. The other room has a terrace with table and a loft.
THE PRICE INCLUDES: Electricity, water, gas for cooking purposes, heating, weekly linen, initial and final cleaning, wi-fi connection, laundry service
THE PRICE DOES NOT INCLUDE:extra cleaning in case of animals (€ 50,00 per week or part of a week per animal), tourism tax (where applicable)
ON REQUEST: extra cleaning (€ 22,00/hour/cleaner), extra linen (€ 15,00/person)
Pets: Yes, small size. € 50,00 per animal per week or part of a week
Handicap: Uncertified property
CIN CODE: IT089013C2WV4U6DPB
REGIONAL IDENTIFICATION CODE: 19089013C238112
BELVEDERE GUASTELLA A VILLA PHOENIX HAS BEEN SUBJECTED TO A CHECK-UP BY A TECHNICAL RESPONSIBLE BEFORE THE BEGINNING OF THE SEASON, TO ENSURE CONSISTENCY OF THE DESCRIPTION, ACCESSORIES LISTED ON THIS PAGE AND THEIR PRESENT STATE OF OPERATION/MAINTENANCE, TO GUARANTEE QUALITY, CLEANLINESS AND COMFORTS TO ALL CLIENTS WHO WILL STAY HERE.
Interior:
This fully air-conditioned apartment has two floors. The antique gate leads to an entrance shared with two other apartments. The main door opens onto a corridor leading to a guest bathroom and two double bedrooms, each with en-suite bathroom with shower and a small balcony overlooking the courtyard. In one of the bathrooms, you can step out onto the balcony directly from the shower. Continuing on, you come to the brightly-coloured kitchen with dining table that faces the spacious living room which includes both seating and dining areas and with access to the balcony overlooking the courtyard. A staircase leads to the upper floor with two double bedrooms with en-suite bathroom with shower. One of the bedrooms has access to a small terrace with two armchairs and a splendid view over the rooftops of Noto. The other room has a terrace with table and a loft.
THE PRICE INCLUDES: Electricity, water, gas for cooking purposes, heating, weekly linen, initial and final cleaning, wi-fi connection, laundry service
THE PRICE DOES NOT INCLUDE:extra cleaning in case of animals (€ 50,00 per week or part of a week per animal), tourism tax (where applicable)
ON REQUEST: extra cleaning (€ 22,00/hour/cleaner), extra linen (€ 15,00/person)
Pets: Yes, small size. € 50,00 per animal per week or part of a week
Handicap: Uncertified property
CIN CODE: IT089013C2WV4U6DPB
REGIONAL IDENTIFICATION CODE: 19089013C238112
Distribution of bedrooms
1 Double bed
1 Double bed
1 Double bed
1 Double bed
1 Extra bed
Special features
9 km to sandy beach
8 km to city
Internet
Air-Conditioned
Open plan kitchen (gas)
Refrigerator
Microwave
Oven
Dishwasher
Dishes/Cutlery
Coffee machine
Toaster
Kettle
Juicer
Bathroom(s)
4 Bathrooms with shower
1 Toilet
General
TV
Internet
Internet
Wi-Fi
Balcony
172 m² Property
59 m² Plot
Pet-friendly
Pet-friendly
Dangerous breed dogs not allowed
Air-Conditioned
Mosquito nets throughout the accommodation
Not supplied
Bed linen
Towels
Mandatory or included services
Air conditioning: Included
Booking fee: 3.9 % of the booking
Final Cleaning: Included
Internet Access: Included
Linen: Included
Linen
Bed linen and towels
Zer0Dep Cover: € 99.00 / booking
Optional services
Baby high chair: € 45.00 / booking
Cot/Crib: € 60.00 / booking
Extra Full Cleaning: € 290.00 / night
Extra Full Cleaning
The full cleaning service of the property involves a thorough intervention aimed at ensuring hygiene and order in all areas, without including linen replacement.
Extra laundry: € 20.00 / person
Pet: € 50.00 / booking
Taxes
Tourist tax: Included in the total price
Tax calculationPlease add the dates of the stay to display the tax conditions
Your schedule
Check-in from 16:00 to 20:00 Every day
Check-outBefore 10:00
Comments
- Animals are admitted to this accommodation, except for dangerous animals
Availability calendar
| May - 2026 | ||||||
| Mon | Tue | Wed | Thur | Fri | Sat | Sun |
| 1 | 2 | 3 | ||||
| 4 | 5 | 6 | 7 | 8 | 9 | 10 |
| 11 | 12 | 13 | 14 | 15 | 16 | 17 |
| 18 | 19 | 20 | 21 | 22 | 23 | 24 |
| 25 | 26 | 27 | 28 | 29 | 30 | 31 |
| June - 2026 | ||||||
| Mon | Tue | Wed | Thur | Fri | Sat | Sun |
| 1 | 2 | 3 | 4 | 5 | 6 | 7 |
| 8 | 9 | 10 | 11 | 12 | 13 | 14 |
| 15 | 16 | 17 | 18 | 19 | 20 | 21 |
| 22 | 23 | 24 | 25 | 26 | 27 | 28 |
| 29 | 30 | |||||
| July - 2026 | ||||||
| Mon | Tue | Wed | Thur | Fri | Sat | Sun |
| 1 | 2 | 3 | 4 | 5 | ||
| 6 | 7 | 8 | 9 | 10 | 11 | 12 |
| 13 | 14 | 15 | 16 | 17 | 18 | 19 |
| 20 | 21 | 22 | 23 | 24 | 25 | 26 |
| 27 | 28 | 29 | 30 | 31 | ||
| August - 2026 | ||||||
| Mon | Tue | Wed | Thur | Fri | Sat | Sun |
| 1 | 2 | |||||
| 3 | 4 | 5 | 6 | 7 | 8 | 9 |
| 10 | 11 | 12 | 13 | 14 | 15 | 16 |
| 17 | 18 | 19 | 20 | 21 | 22 | 23 |
| 24 | 25 | 26 | 27 | 28 | 29 | 30 |
| 31 | ||||||
| September - 2026 | ||||||
| Mon | Tue | Wed | Thur | Fri | Sat | Sun |
| 1 | 2 | 3 | 4 | 5 | 6 | |
| 7 | 8 | 9 | 10 | 11 | 12 | 13 |
| 14 | 15 | 16 | 17 | 18 | 19 | 20 |
| 21 | 22 | 23 | 24 | 25 | 26 | 27 |
| 28 | 29 | 30 | ||||
| October - 2026 | ||||||
| Mon | Tue | Wed | Thur | Fri | Sat | Sun |
| 1 | 2 | 3 | 4 | |||
| 5 | 6 | 7 | 8 | 9 | 10 | 11 |
| 12 | 13 | 14 | 15 | 16 | 17 | 18 |
| 19 | 20 | 21 | 22 | 23 | 24 | 25 |
| 26 | 27 | 28 | 29 | 30 | 31 | |
Price lists
|
Dates
Price per week (VAT included)
*
|
|
|---|---|
| 25/04/2026 · 29/05/2026 |
€ 1,680 |
| 30/05/2026 · 26/06/2026 |
€ 2,247 |
| 27/06/2026 · 10/07/2026 |
€ 2,807 |
| 11/07/2026 · 21/08/2026 |
€ 3,150 |
| 22/08/2026 · 28/08/2026 |
€ 2,807 |
| 29/08/2026 · 25/09/2026 |
€ 2,247 |
Map and distances
-
Distances
Shops - Noto
300 m
Train station - Noto
2 km
Town centre - Avola
8 km
Sand beach - Lido di Noto
9 km
Sand beach - Riserva Naturale di Vendicari
11 km
Sand beach - Lido di Avola
11 km
Nature reserve - Riserva Naturale di Vendicari
11 km
Town centre - Noto Antica
15 km
Town centre - Marzamemi
23 km
Town centre - Siracusa
40 km
Town centre - Modica
40 km
Town centre - Scicli
50 km
Town centre - Ragusa
60 km
Airport - Comiso
75 km
Airport - Catania
90 km
Booking conditions
From the booking date until 71 days before check-in, cancellation would have a penalty of 30% of the total price of the rent.
Cancellation policies
In case of cancellation the following charges will apply
From the booking date until 71 days before check-in
30% of the total rent
From 70 days before until check-in
100% of the total rent
No-show
100% of the total prepayment amount
Other relevant information
National Identification Code (CIN)
IT089013C2WV4U6DPB