› Castiglione di Sicilia › Villa Terre Normanne
Villa Terre Normanne
Castiglione di Sicilia - Villa
Availability and prices
Accommodation
Description
Villa Terre Normanne is set in a 15-hectare estate, surrounded by its vineyards and vast terrain. It features a large infinity pool with an enchanting view of Mount Etna, elegant bedrooms with sweeping vistas, elegant furniture, fireplaces, indoor and outdoor dining areas for spending quality time with friends and family. The heart of the house revolves around the 80 sq m living area, furnished with comfortable sofas and an imposing dining table for ten people, and a modern fully-equipped kitchen. The original farm structure has remained intact even though finely restored; what used to be the Palmento, where once the grapes were pressed and left to macerate, is now a cellar for tasting DOC wines from the Etna area as well as that produced on the estate itself. The additional structures, once destined to agricultural use, have been converted into buildings with welcoming bedrooms. Outside, the large swimming pool with spectacular views of Mount Etna offers recreational moments for adults and children, as well as being a delightful spot to enjoy an apéritif at sunset. The property is located in one of the most beautiful areas on the slopes of Etna. A few minutes away by car are the neighbouring towns of Piedimonte, Linguaglossa and Castiglione di Sicilia with bars, restaurants and food shops. The estate is surrounded by numerous wineries you can visit to taste the local wine and food. A visit to Etna can be enjoyed alone or accompanied by specialised guides. Elegant Taormina with its fully-equipped beaches, shops and restaurants is less than half an hour away.
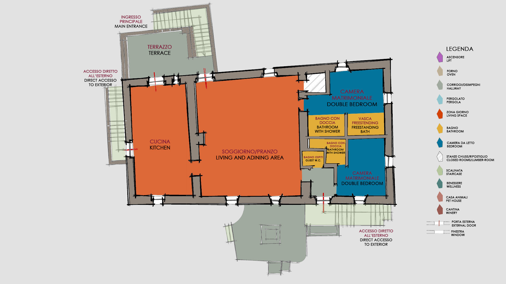
INTERIOR
The complex consists of three separate buildings about 30 m away from each other. The MAIN HOUSE extends for approximately 250 sq m on two floors, connected by an external staircase. The main entrance is on the first floor, consisting of a large living room with a big sitting area with sofas and a dining area with an imposing table for 14 people. The large adjoining kitchen is fully equipped with a central island and a functioning fireplace next to two armchairs. The kitchen leads directly to the small outdoor terrace with a dining area for eight people. The floor is completed by two elegant double bedrooms with panoramic views of the volcano, both with open-plan ensuite bathrooms, one with tub and shower and the other with shower. Going down the external stairs you come to the ground floor where "Il Vecchio Palmento" is located. Once wine was produced here, now it has been renovated into a cellar where you can taste wines from the area, as well as that from Terre Normanne. There is also a living room with sofa and TV, and a guest bathroom. Also located on the same floor is the laundry area. On the other side of the external staircase is a double suite with double private entrance, sitting room and bathroom with shower and tub. A few steps away is ANNEX 1, the old farmhouse of about 150 sq m on two floors. The entrance on the ground floor leads to the living room with sofa and functioning fireplace. The well-equipped kitchen has direct access to the outdoor terrace, with a dining table for eight people, shaded by a canopy. The floor is completed by a double bedroom with ensuite bathroom with shower. A spiral staircase at the entrance leads to the upper floor with two double bedrooms: one with a small balcony and ensuite bathroom with hydromassage tub, the other with a private bathroom with shower. The floor is completed by a study. ANNEX 2, measuring approximately 40 sq m, consists of two double bedrooms, one with a queen size bed, sharing a bathroom with shower.
PARK
15 hectares of vineyards surround this historic estate where you can stroll or play games, immersed in nature. The buildings are surrounded by lawn with flowering borders where you can relax and have a picnic. A covered gazebo includes a barbecue and a rustic dining table with benches. The caretaker who lives nearby will show you the vegetable garden and fruit trees so that you can enjoy fresh organic ingredients. Finally, expanses of vineyards surround the estate and the majestic view of Etna will be constantly in front of you. The property has a large parking area close to the structure, just inside the gate.
SWIMMING POOL
The swimming pool, about 50 m from the main house, is secluded and not visible from it. Measuring 16 x 8 m with a progressive depth from 1,00 to 2,10m, the pool has chlorine purification and is lined in smooth grey cement with the border and internal Roman steps in lava stone, perfect for children's games and swimming. It is surrounded by a terracotta solarium, bordered by lawn and equipped with sunbeds and umbrellas. You will be enchanted by the view of the vineyards, the countryside and the view of Etna in front. The area is ideal for relaxing in the sun during the day and for sipping a good glass of wine at sunset. Close by is an outdoor cold-water shower and a bathroom. The pool is available from the last Saturday of April to the first Saturday of October.
POSITION
Less than an hour from Catania airport, Villa Terre Normanne is set in a working farm estate with 15 hectares of vineyards, in the heart of the spectacular Etna DOC wine region. The area in full development has numerous wineries, vineyards, restaurants where you can sample local products and excellent wines. But the area is not only food and wine. Not far from Villa Terre Normanne it is possible to practice many sports: horse riding, hiking, mountain and quad biking. In winter you can also ski on the snowy peaks of Etna, reached by chair lift. There are also numerous mountain villages to visit and the Circumetnea train station stops near the estate. Elegant Taormina is only 30 minutes away by car and the nearest and less crowded beaches are 20 minutes away.
THE PRICE INCLUDES: water, gas for cooking purposes, weekly linen, initial and final cleaning and pool and park maintenance, wi-fi connection
THE PRICE DOES NOT INCLUDE: electricity (on consumption up to date market prices), mandatory extra cleaning when pets are present (€ 30,00 per animal per week or part of week), tourism tax (where applicable), in case of non-disposal of urban waste, the extra payment of € 70.00 per week will be required at check-out
ON REQUEST: riscaldamento (a consumo con prezzi in vigore al momento del soggiorno), pulizia extra (€ 22,00/h per persona impiegata), biancheria extra (€ 15,00/persona)
PETS: on request
INTERIOR
The complex consists of three separate buildings about 30 m away from each other. The MAIN HOUSE extends for approximately 250 sq m on two floors, connected by an external staircase. The main entrance is on the first floor, consisting of a large living room with a big sitting area with sofas and a dining area with an imposing table for 14 people. The large adjoining kitchen is fully equipped with a central island and a functioning fireplace next to two armchairs. The kitchen leads directly to the small outdoor terrace with a dining area for eight people. The floor is completed by two elegant double bedrooms with panoramic views of the volcano, both with open-plan ensuite bathrooms, one with tub and shower and the other with shower. Going down the external stairs you come to the ground floor where "Il Vecchio Palmento" is located. Once wine was produced here, now it has been renovated into a cellar where you can taste wines from the area, as well as that from Terre Normanne. There is also a living room with sofa and TV, and a guest bathroom. Also located on the same floor is the laundry area. On the other side of the external staircase is a double suite with double private entrance, sitting room and bathroom with shower and tub. A few steps away is ANNEX 1, the old farmhouse of about 150 sq m on two floors. The entrance on the ground floor leads to the living room with sofa and functioning fireplace. The well-equipped kitchen has direct access to the outdoor terrace, with a dining table for eight people, shaded by a canopy. The floor is completed by a double bedroom with ensuite bathroom with shower. A spiral staircase at the entrance leads to the upper floor with two double bedrooms: one with a small balcony and ensuite bathroom with hydromassage tub, the other with a private bathroom with shower. The floor is completed by a study. ANNEX 2, measuring approximately 40 sq m, consists of two double bedrooms, one with a queen size bed, sharing a bathroom with shower.
PARK
15 hectares of vineyards surround this historic estate where you can stroll or play games, immersed in nature. The buildings are surrounded by lawn with flowering borders where you can relax and have a picnic. A covered gazebo includes a barbecue and a rustic dining table with benches. The caretaker who lives nearby will show you the vegetable garden and fruit trees so that you can enjoy fresh organic ingredients. Finally, expanses of vineyards surround the estate and the majestic view of Etna will be constantly in front of you. The property has a large parking area close to the structure, just inside the gate.
SWIMMING POOL
The swimming pool, about 50 m from the main house, is secluded and not visible from it. Measuring 16 x 8 m with a progressive depth from 1,00 to 2,10m, the pool has chlorine purification and is lined in smooth grey cement with the border and internal Roman steps in lava stone, perfect for children's games and swimming. It is surrounded by a terracotta solarium, bordered by lawn and equipped with sunbeds and umbrellas. You will be enchanted by the view of the vineyards, the countryside and the view of Etna in front. The area is ideal for relaxing in the sun during the day and for sipping a good glass of wine at sunset. Close by is an outdoor cold-water shower and a bathroom. The pool is available from the last Saturday of April to the first Saturday of October.
POSITION
Less than an hour from Catania airport, Villa Terre Normanne is set in a working farm estate with 15 hectares of vineyards, in the heart of the spectacular Etna DOC wine region. The area in full development has numerous wineries, vineyards, restaurants where you can sample local products and excellent wines. But the area is not only food and wine. Not far from Villa Terre Normanne it is possible to practice many sports: horse riding, hiking, mountain and quad biking. In winter you can also ski on the snowy peaks of Etna, reached by chair lift. There are also numerous mountain villages to visit and the Circumetnea train station stops near the estate. Elegant Taormina is only 30 minutes away by car and the nearest and less crowded beaches are 20 minutes away.
THE PRICE INCLUDES: water, gas for cooking purposes, weekly linen, initial and final cleaning and pool and park maintenance, wi-fi connection
THE PRICE DOES NOT INCLUDE: electricity (on consumption up to date market prices), mandatory extra cleaning when pets are present (€ 30,00 per animal per week or part of week), tourism tax (where applicable), in case of non-disposal of urban waste, the extra payment of € 70.00 per week will be required at check-out
ON REQUEST: riscaldamento (a consumo con prezzi in vigore al momento del soggiorno), pulizia extra (€ 22,00/h per persona impiegata), biancheria extra (€ 15,00/persona)
PETS: on request
Distribution of bedrooms
1 Double bed
1 Double bed
1 Double bed
1 Double bed
1 Double bed
1 Double bed
1 Double bed
1 Queen size bed
1 Extra bed
Special features
Private pool
Garden
Internet
Air-Conditioned
Open plan kitchen (gas)
Refrigerator
Oven
Dishwasher
Dishes/Cutlery
Kitchen utensils
Coffee machine
Toaster
Kettle
Bathroom(s)
3 Bathrooms with bathtub
4 Bathrooms with shower
2 Toilets
Views
golf-course
General
2 TVs
Garden
Garden furniture
Washing machine
Barbecue
Iron
Internet
Internet
Wi-Fi
Hair dryer
Hot tub
500 m² Property
Air-Conditioned
Private Swimming pool
Private Swimming pool
Dimensions 16x8, max depth 2.1 m, min depth 1 m, opening date 26/4, closing date 4/10
Garage the same building
Garage the same building
4 spaces
Mandatory or included services
Air conditioning: Included
Booking fee: 3.9 % of the booking
Final Cleaning: Included
Internet Access: Included
Linen: Included
Linen
Bed linen and towels
Garage: Included
Zer0Dep Cover: € 99.00 / booking
Optional services
Baby high chair: € 45.00 / booking
Cot/Crib: € 60.00 / booking
Extra cleaning: € 22.00 / person
Extra laundry: € 15.00 / person
Your schedule
Check-in from 16:00 to 20:00 Every day
Check-outBefore 10:00
Comments
- No pets allowed
Availability calendar
| March - 2026 | ||||||
| Mon | Tue | Wed | Thur | Fri | Sat | Sun |
| 1 | ||||||
| 2 | 3 | 4 | 5 | 6 | 7 | 8 |
| 9 | 10 | 11 | 12 | 13 | 14 | 15 |
| 16 | 17 | 18 | 19 | 20 | 21 | 22 |
| 23 | 24 | 25 | 26 | 27 | 28 | 29 |
| 30 | 31 | |||||
| April - 2026 | ||||||
| Mon | Tue | Wed | Thur | Fri | Sat | Sun |
| 1 | 2 | 3 | 4 | 5 | ||
| 6 | 7 | 8 | 9 | 10 | 11 | 12 |
| 13 | 14 | 15 | 16 | 17 | 18 | 19 |
| 20 | 21 | 22 | 23 | 24 | 25 | 26 |
| 27 | 28 | 29 | 30 | |||
| May - 2026 | ||||||
| Mon | Tue | Wed | Thur | Fri | Sat | Sun |
| 1 | 2 | 3 | ||||
| 4 | 5 | 6 | 7 | 8 | 9 | 10 |
| 11 | 12 | 13 | 14 | 15 | 16 | 17 |
| 18 | 19 | 20 | 21 | 22 | 23 | 24 |
| 25 | 26 | 27 | 28 | 29 | 30 | 31 |
| June - 2026 | ||||||
| Mon | Tue | Wed | Thur | Fri | Sat | Sun |
| 1 | 2 | 3 | 4 | 5 | 6 | 7 |
| 8 | 9 | 10 | 11 | 12 | 13 | 14 |
| 15 | 16 | 17 | 18 | 19 | 20 | 21 |
| 22 | 23 | 24 | 25 | 26 | 27 | 28 |
| 29 | 30 | |||||
| July - 2026 | ||||||
| Mon | Tue | Wed | Thur | Fri | Sat | Sun |
| 1 | 2 | 3 | 4 | 5 | ||
| 6 | 7 | 8 | 9 | 10 | 11 | 12 |
| 13 | 14 | 15 | 16 | 17 | 18 | 19 |
| 20 | 21 | 22 | 23 | 24 | 25 | 26 |
| 27 | 28 | 29 | 30 | 31 | ||
| August - 2026 | ||||||
| Mon | Tue | Wed | Thur | Fri | Sat | Sun |
| 1 | 2 | |||||
| 3 | 4 | 5 | 6 | 7 | 8 | 9 |
| 10 | 11 | 12 | 13 | 14 | 15 | 16 |
| 17 | 18 | 19 | 20 | 21 | 22 | 23 |
| 24 | 25 | 26 | 27 | 28 | 29 | 30 |
| 31 | ||||||
Price lists
| DatesPrice per week (VAT included) | |
|---|---|
| 03/01/2026 · 24/04/2026 |
€ 6,545 |
| 25/04/2026 · 22/05/2026 |
€ 7,595 |
| 23/05/2026 · 26/06/2026 |
€ 10,234 |
| 27/06/2026 · 10/07/2026 |
€ 12,047 |
| 11/07/2026 · 21/08/2026 |
€ 13,202 |
| 22/08/2026 · 28/08/2026 |
€ 12,047 |
Map and distances
-
Distances
Golf course - Picciolo Golf
3 km
Shops - Rovittello
4 km
Shops - Castiglione
4 km
Train station - Rovittello
4 km
Shops - Linguaglossa
6 km
Town centre - Alcantara
14 km
Town centre - Castello degli Schiavi
19 km
Sand beach - San Marco
21 km
Park - Parco Avventura Etna
23 km
Town centre - Etna
25 km
Sand beach - Taormina
30 km
Train station - Taormina-Giardini
34 km
Town centre - Taormina
35 km
Shops - Taormina
35 km
Train station - Catania
53 km
Town centre - Catania
54 km
Airport - Catania
68 km
Airport - Palermo
244 km
Booking conditions
From the booking date until 71 days before check-in, cancellation would have a penalty of 30% of the total price of the rent.
Cancellation policies
In case of cancellation the following charges will apply
From the booking date until 71 days before check-in
30% of the total rent
From 70 days before until check-in
100% of the total rent
No-show
100% of the total prepayment amount
Other relevant information
National Identification Code (CIN)
IT087014B5FZ9FAC2R